"Exklusive Neubauwohnung: Wohnen mit Weitblick in Dortmund Aplerbeck"
Informationen zur Immobilie:
Zimmeranzahl
3
Ort
44287 Dortmund
Etagen
3
Objektart
Wohnung
Größe
ca. 145,00 m²
598.000 €
Beschreibung:
Mehr zum Angebot "Exklusive Neubauwohnung: Wohnen mit Weitblick in Dortmund Aplerbeck":
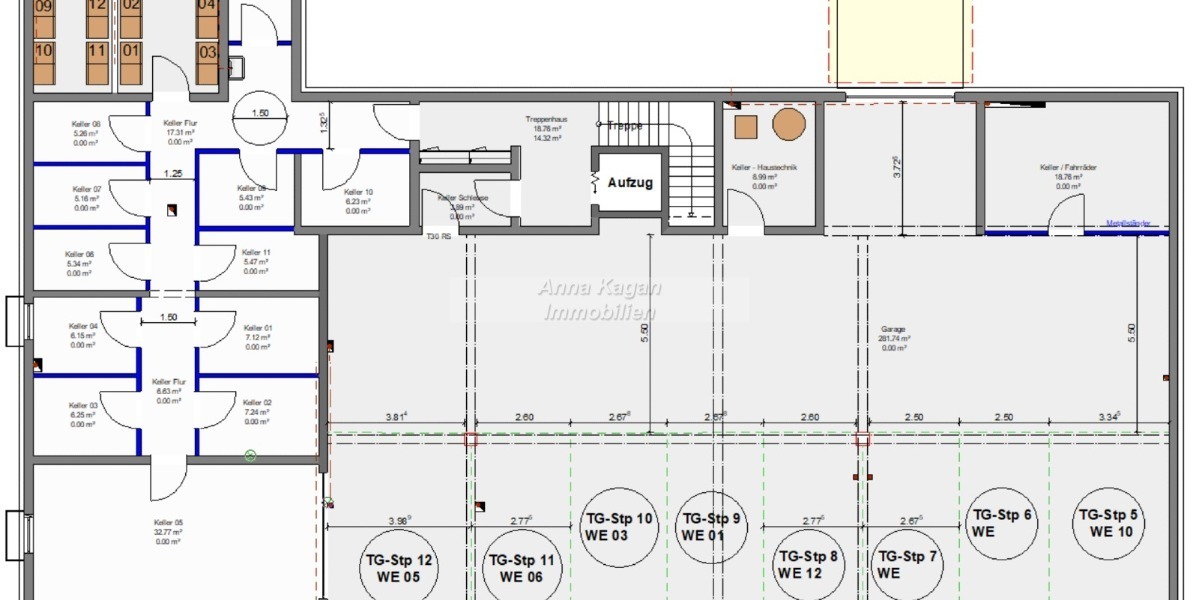
In zentraler Lage von Dortmund Aplerbeck entsteht ein exklusives Mehrfamilienhaus mit 12 modernen Eigentumswohnungen, errichtet von dem renommierten Dortmunder Bauträger "Massivhaus Dortmund". Dieses Projekt bietet eine einzigartige Gelegenheit, in ein... mehr erfahren
In zentraler Lage von Dortmund Aplerbeck entsteht ein exklusives Mehrfamilienhaus mit 12 modernen Eigentumswohnungen, errichtet von dem renommierten Dortmunder Bauträger "Massivhaus Dortmund". Dieses Projekt bietet eine einzigartige Gelegenheit, in ein... mehr erfahren
weitere 3 Zimmer Wohnungen